Visites virtuelles

Découvrez nos modèles de maisons en visite virtuelle, pour mieux apprécier l’aménagement intérieur de chaque plan, le volume et la lumière des pièces et s’inspirer avec des idées déco.

 

Constructeur de maison proche de vous

Trouver un
plan de maison

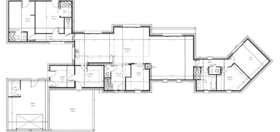
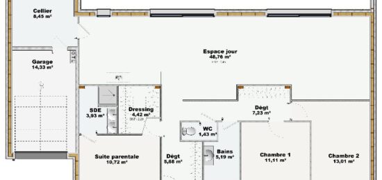
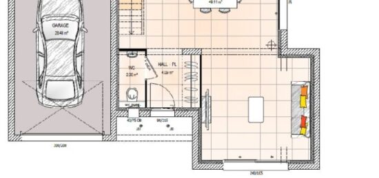
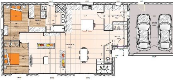
68 plans de maison identifiés

Emplacement

Où construire ma maison

Ou bien, rechercher dans Tous les départements

Caractéristiques

Caractéristiques du bien

Nombre de chambres

Plusieurs choix possibles

Nombre de pièces

Plusieurs choix possibles

Surface

Surface habitable

m2
m2