ROCAVP21R1115-3GI

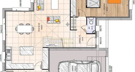
Plan maison 5 pièces 3 chambres Surface maison 115 à 116 m2

Venez visiter cette magnifique maison aux lignes épurées de 115m² avec pièce de vie lumineuse de 45m² délimitant les 3 espaces à vivre: cuisine ouverte, séjour et salon. On y découvre 1 chambre parentale avec dressing et sa salle d'eau privative composée se sa douche à l'italienne. Le cellier dessert la cuisine et le garage. A l'étage, la mezzanine offre une vue plongeante sur le salon et dessert 2 belles chambres et une salle de bain spacieuse.

Construire ce modèle ?

    * Champs obligatoires

    Vos informations sont traitées par HEXAOM et transmises à un conseiller commercial qui vous contactera afin de répondre à votre demande. Les plans et images présentés sur notre site sont la propriété d’HEXAOM et ne peuvent pas être reproduits sans son accord. Pour retrouver notre politique de protection des données personnelles et exercer vos droits conformément à la « loi informatique et liberté » cliquez-ici.