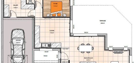
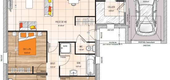
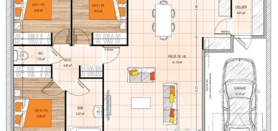
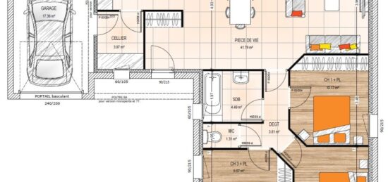
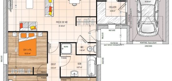
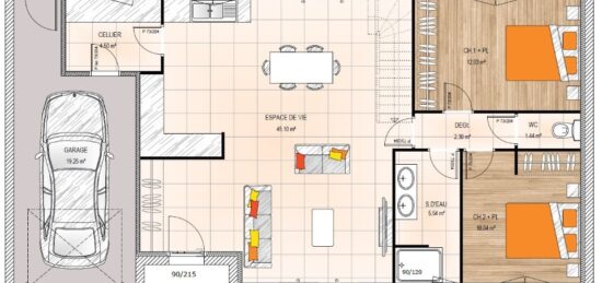
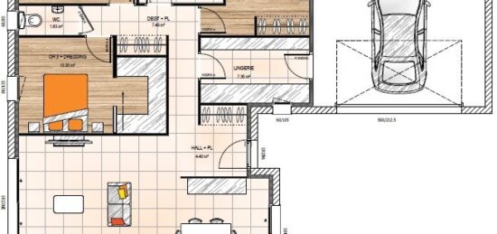
Plans de maisons

Maisons Bernard Jambert vous présente réalisés à la demande de nos clients, avec son savoir-faire et son expérience acquis ces 30 dernières années. Maisons Bernard Jambert apporte une réponse à tous vos projet en s’adaptant à à vos envies et à votre budget.

Constructeur de maison proche de vous

Trouver un
plan de maison

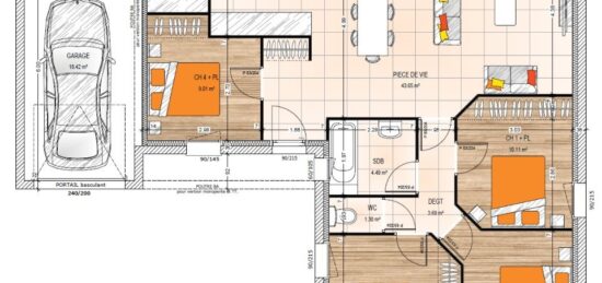
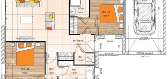
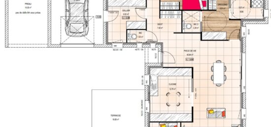
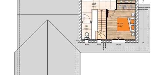
198 plans de maison identifiés

Emplacement

Où construire ma maison

Ou bien, rechercher dans Tous les départements

Caractéristiques

Caractéristiques du bien

Nombre de chambres

Plusieurs choix possibles

Nombre de pièces

Plusieurs choix possibles

Surface

Surface habitable

m2
m2
Options

Options