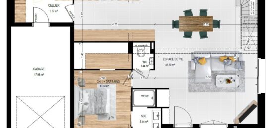
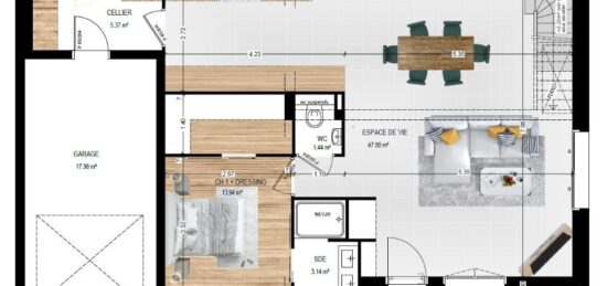
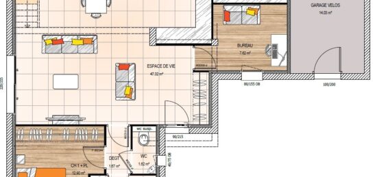
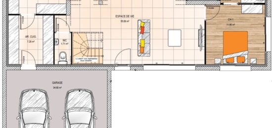
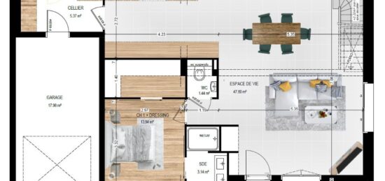
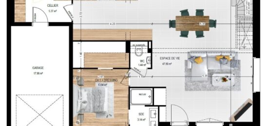
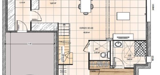
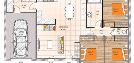
746 Nos Maisons neuves à vendre

Nos annonces de maisons neuves sont mises à jour quotidiennement.
Nous sélectionnons, avec nos partenaires fonciers, les meilleurs terrains constructibles à vendre et vous proposons nos annonces maison + terrain.

Pour rester informé des nouvelles offres de terrain et maison, créez vos alertes mails.

Constructeur de maison proche de vous

Trouver un
Terrain + maison

746 annonces identifiées

Type de bien

Type de bien

Emplacement

Où construire ma maison

Ou bien, rechercher dans Tous les départements

Caractéristiques

Caractéristiques du bien

Nombre de chambres

Plusieurs choix possibles

Nombre de pièces

Plusieurs choix possibles

Surface

Surface habitable

m2
m2
Prix

Prix