RCA2091-3GI

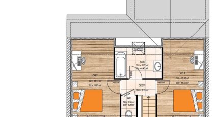
Plan maison 5 pièces 3 chambres Surface maison 90 à 95 m2

Votre constructeur Maisons Bernard JAMBERT vous propose un avant-projet réalisé aux environs d'Angers. Cette maison à combles aménagés de 91 m² habitable, au style contemporain, se compose d'une pièce de vie de 40 m² traversante avec une cuisine donnant sur le jardin et terrasse, une chambre avec sa SDE. Vous serez séduit par la luminosité et l'agencement des espaces. Le côté nuit est organisé autour de chambres d'environ 11 m², un bureau et une salle de bain. Une zone de rangement est également prévue avec un cellier et un garage.

Construire ce modèle ?

    * Champs obligatoires

    Vos informations sont traitées par HEXAOM et transmises à un conseiller commercial qui vous contactera afin de répondre à votre demande. Les plans et images présentés sur notre site sont la propriété d’HEXAOM et ne peuvent pas être reproduits sans son accord. Pour retrouver notre politique de protection des données personnelles et exercer vos droits conformément à la « loi informatique et liberté » cliquez-ici.