R121148-4GA TUILES

Plan maison 6 pièces 4 chambres Surface maison 148 à 149 m2

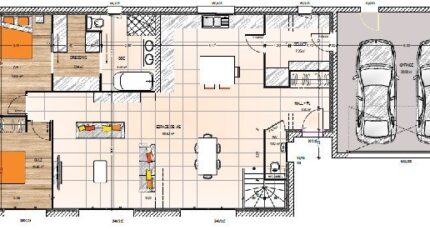
Belle réalisation conçue sur mesure par les Maisons BERNARD JAMBERT. Entrez dans un bel espace de vie de plus de 60m², bel agencement de la cuisine avec son ilot centrale et ouverte sur la pièce de vie pour plus de convivialité. On continue la visite avec deux chambres au rez de chaussée dont une parentale suivi d'un dressing et d'une salle d'eau en enfilade. L'étage se compose de deux chambres supplémentaires et une salle d'eau. Le dégagement donne un espace aéré et sympathique avec son vide sur le séjour. On termine par un double garage accolé donnant accès sur l'arrière de la maison et une ouverture dans le cellier.

Construire ce modèle ?

    * Champs obligatoires

    Vos informations sont traitées par HEXAOM et transmises à un conseiller commercial qui vous contactera afin de répondre à votre demande. Les plans et images présentés sur notre site sont la propriété d’HEXAOM et ne peuvent pas être reproduits sans son accord. Pour retrouver notre politique de protection des données personnelles et exercer vos droits conformément à la « loi informatique et liberté » cliquez-ici.