CAIAVP21PP88-3GI

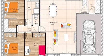
Plan maison 4 pièces 3 chambres Surface maison 80 à 88 m2

Nous vous proposons une maison de plain-pied au style traditionnel. Vous profiterez d'un espace de vie d'environ 40 m² baigné de lumière grâce à ses baies de grandes dimensions. La cuisine qui reste ouverte est un appel à la convivialité ainsi qu'aux bons petits plats ! elle se prolonge d'un cellier à l'accès direct au garage. Le coin nuit se compose de 3 chambres avec placards. Le garage de 18 m² est appréciable pour son rangement.

Construire ce modèle ?

    * Champs obligatoires

    Vos informations sont traitées par HEXAOM et transmises à un conseiller commercial qui vous contactera afin de répondre à votre demande. Les plans et images présentés sur notre site sont la propriété d’HEXAOM et ne peuvent pas être reproduits sans son accord. Pour retrouver notre politique de protection des données personnelles et exercer vos droits conformément à la « loi informatique et liberté » cliquez-ici.