RCA2096-3GA

Plan maison 5 pièces 3 chambres Surface maison 95 à 100 m2

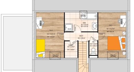
Votre constructeur Maisons Bernard JAMBERT vous propose un avant-projet réalisé pour un couple de jeunes parents. Cette maison avec combles aménagés de 96 m² habitable, au style contemporain, se compose d'une pièce de vie de 41 m² traversante avec une cuisine donnant sur le jardin et la terrasse. Le côté nuit est organisé autour de 3 chambres et d'une salle de bain à l'étage et d'une très belle suite parentale au RDC. Une zone de rangement est également prévue avec un cellier et un garage.

Construire ce modèle ?

    * Champs obligatoires

    Vos informations sont traitées par HEXAOM et transmises à un conseiller commercial qui vous contactera afin de répondre à votre demande. Les plans et images présentés sur notre site sont la propriété d’HEXAOM et ne peuvent pas être reproduits sans son accord. Pour retrouver notre politique de protection des données personnelles et exercer vos droits conformément à la « loi informatique et liberté » cliquez-ici.