RCA20130-4MGA

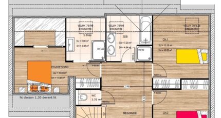
Plan maison 5 pièces 5 chambres Surface maison 125 à 135 m2

Votre constructeur Maisons Bernard JAMBERT vous propose un bel avant-projet aux lignes sobres et épurées. Cette maison familiale à étage de 130 m² habitable, se compose d'une entrée séparée, d'une pièce de vie de 46 m² avec une magnifique ouverture cathédrale donnant sur le jardin et terrasse et un bureau. Vous serez séduit par la luminosité et les espaces. Le côté nuit est organisé à l'étage autour de 3 chambres, 2 salles de bain et une mezzanine qui fera le bonheur des enfants. Une zone de rangement est également prévue avec un cellier et un garage.

Construire ce modèle ?

    * Champs obligatoires

    Vos informations sont traitées par HEXAOM et transmises à un conseiller commercial qui vous contactera afin de répondre à votre demande. Les plans et images présentés sur notre site sont la propriété d’HEXAOM et ne peuvent pas être reproduits sans son accord. Pour retrouver notre politique de protection des données personnelles et exercer vos droits conformément à la « loi informatique et liberté » cliquez-ici.