RCA1996-4GA

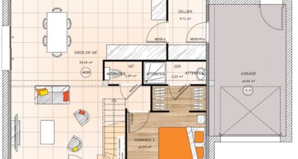
Plan maison 6 pièces 4 chambres Surface maison 96 m2

Une belle architecture contemporaine pour cette maison de 96 m² habitable plus un garage. Vous y découvrirez un vaste salon-séjour offrant de belles et grandes ouvertures, une arrière cuisine donnant un accès direct sur le garage, 1 suite parentale au rez de chaussée avec une belle salle de bain équipée. A l'étage, 3 autres chambres et une salle de bain.

Construire ce modèle ?

    * Champs obligatoires

    Vos informations sont traitées par HEXAOM et transmises à un conseiller commercial qui vous contactera afin de répondre à votre demande. Les plans et images présentés sur notre site sont la propriété d’HEXAOM et ne peuvent pas être reproduits sans son accord. Pour retrouver notre politique de protection des données personnelles et exercer vos droits conformément à la « loi informatique et liberté » cliquez-ici.