RCA19110-4GI

Plan maison 5 pièces 4 chambres Surface maison 110 à 125 m2

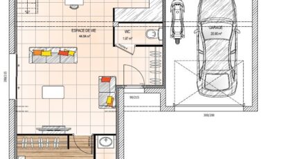
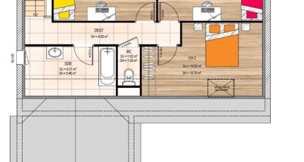
Nous vous proposons cette jolie maison à étage comprenant un salon-séjour lumineux avec cuisine ouverte sur la pièce de vie, 1 chambre au rez de chaussée et sa salle d'eau privative, 3 belles chambres avec placard à l'étage et une salle de bain équipée d'une baignoire. Bénéficiez du cellier communiquant avec la cuisine et le garage. Étude gratuite et personnalisée de votre projet.

Construire ce modèle ?

    * Champs obligatoires

    Vos informations sont traitées par HEXAOM et transmises à un conseiller commercial qui vous contactera afin de répondre à votre demande. Les plans et images présentés sur notre site sont la propriété d’HEXAOM et ne peuvent pas être reproduits sans son accord. Pour retrouver notre politique de protection des données personnelles et exercer vos droits conformément à la « loi informatique et liberté » cliquez-ici.