R1TT21237-7GA

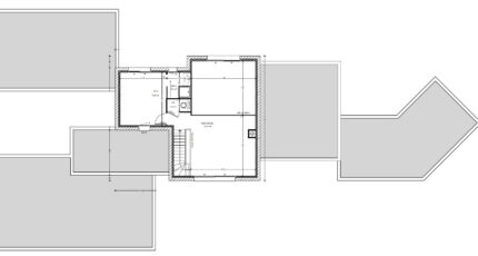
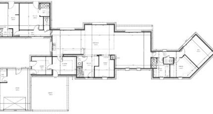
Plan maison 1 pièce 1 chambre Surface maison 145 m2

Une magnifique et exceptionnelle maison à étage proposée par un de nos conseillers en habitat. Vous profiterez d'un espace de vie d'environ 76 m² baigné de lumière grâce à ses nombreuses baies de grandes dimensions. La cuisine qui reste ouverte est un appel à la convivialité ainsi qu'aux bons petits plats ! la cuisine se prolonge d'un cellier, d'une lingerie ! Le coin nuit se compose d'une suite parentale très confortable, de 4 autres chambres avec placards. Le garage de 31 m² est appréciable pour son rangement et le carport donne une touche encore plus contemporaine à cette maison.

Construire ce modèle ?

    * Champs obligatoires

    Vos informations sont traitées par HEXAOM et transmises à un conseiller commercial qui vous contactera afin de répondre à votre demande. Les plans et images présentés sur notre site sont la propriété d’HEXAOM et ne peuvent pas être reproduits sans son accord. Pour retrouver notre politique de protection des données personnelles et exercer vos droits conformément à la « loi informatique et liberté » cliquez-ici.