R1TT21109-2GI

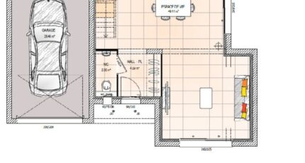
Plan maison 4 pièces 2 chambres Surface maison 110 m2

Optez pour ce modèle de maison contemporaine de 110m² habitables. Vous découvrirez au rez-de-chaussée un salon-séjour spacieux, une cuisine séparée par une cloison verrière dite atelier pour son design et une arrière cuisine donnant accès au garage. A l'étage on y découvre l'espace nuit avec un vaste pallier de 11m² qui dessert 2 chambres, une salle de bain et un WC séparé. Le petit plus de cette maison se compose d'un balcon accessible des deux chambres.

Construire ce modèle ?

    * Champs obligatoires

    Vos informations sont traitées par HEXAOM et transmises à un conseiller commercial qui vous contactera afin de répondre à votre demande. Les plans et images présentés sur notre site sont la propriété d’HEXAOM et ne peuvent pas être reproduits sans son accord. Pour retrouver notre politique de protection des données personnelles et exercer vos droits conformément à la « loi informatique et liberté » cliquez-ici.