R1MP20109-4MGI

Plan maison 5 pièces 4 chambres Surface maison 100 à 110 m2

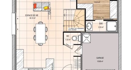
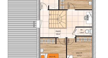
Votre constructeur Maisons Bernard JAMBERT vous propose un avant-projet réalisé pour un couple de jeunes parents. Cette maison de 109 m² habitable, au style contemporain, se compose d'une pièce de vie de 42 m² traversante avec une cuisine donnant sur rue. Vous serez séduit par la luminosité de cette maison. Au rdc, vous profiterez également d'une suite parentale. A l'étage, vous trouverez 3 chambres d'environ 11 m², une salle de bain et une petite mezzanine. Une zone de rangement est également prévue avec un garage.

Construire ce modèle ?

    * Champs obligatoires

    Vos informations sont traitées par HEXAOM et transmises à un conseiller commercial qui vous contactera afin de répondre à votre demande. Les plans et images présentés sur notre site sont la propriété d’HEXAOM et ne peuvent pas être reproduits sans son accord. Pour retrouver notre politique de protection des données personnelles et exercer vos droits conformément à la « loi informatique et liberté » cliquez-ici.