R1MP20105-4GI

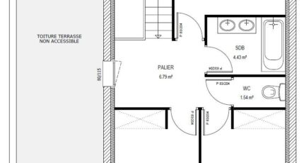
Plan maison 6 pièces 4 chambres Surface maison 105 m2

Votre constructeur vous propose un avant projet contemporain avec cette maison de 105 m² réalisée pour un investisseur. Vous y découvrirez un vaste salon-séjour offrant de belles et grandes ouvertures, un garage, 1 suite parentale au rez de chaussée avec une salle de bain équipée d'une large douche à l'italienne. A l'étage, 3 autres chambres et une salle de bain. Plans personnalisés et sur mesure.

Construire ce modèle ?

    * Champs obligatoires

    Vos informations sont traitées par HEXAOM et transmises à un conseiller commercial qui vous contactera afin de répondre à votre demande. Les plans et images présentés sur notre site sont la propriété d’HEXAOM et ne peuvent pas être reproduits sans son accord. Pour retrouver notre politique de protection des données personnelles et exercer vos droits conformément à la « loi informatique et liberté » cliquez-ici.