R1MP19135-4GI

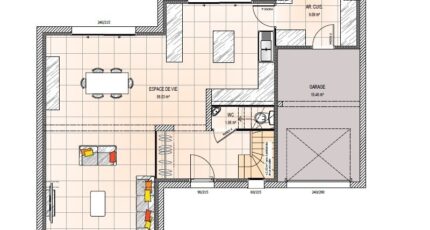
Plan maison 5 pièces 4 chambres Surface maison 110 à 135 m2

Une belle architecture contemporaine pour cette maison familiale de 135 m² habitable. Vous y découvrirez, au RDC, une entrée séparée, un vaste salon-séjour de près de 60 m² offrant de grandes ouvertures sur le jardin, une arrière cuisine donnant un accès direct sur le garage. A l'étage, vous découvrirez 4 chambres dont 1 suite parentale. Ce plans peut se personnaliser à volonté.

Construire ce modèle ?

    * Champs obligatoires

    Vos informations sont traitées par HEXAOM et transmises à un conseiller commercial qui vous contactera afin de répondre à votre demande. Les plans et images présentés sur notre site sont la propriété d’HEXAOM et ne peuvent pas être reproduits sans son accord. Pour retrouver notre politique de protection des données personnelles et exercer vos droits conformément à la « loi informatique et liberté » cliquez-ici.