R19129-4GI

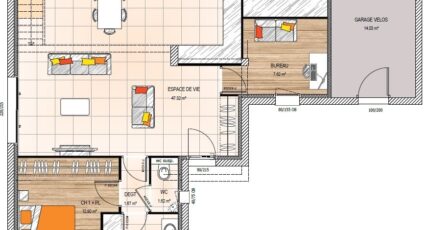
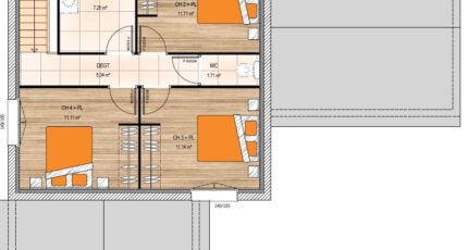
Plan maison 6 pièces 4 chambres Surface maison 125 à 130 m2

Un côté très famille pour cette maison à étage de 129m² avec pièce de vie lumineuse, 4 belles chambres toutes équipées de placards dont une suite parentale au rez de chaussée et un bureau pour votre espace travail, cellier et garage à vélos.

Construire ce modèle ?

    * Champs obligatoires

    Vos informations sont traitées par HEXAOM et transmises à un conseiller commercial qui vous contactera afin de répondre à votre demande. Les plans et images présentés sur notre site sont la propriété d’HEXAOM et ne peuvent pas être reproduits sans son accord. Pour retrouver notre politique de protection des données personnelles et exercer vos droits conformément à la « loi informatique et liberté » cliquez-ici.