R120140-4MGA

Plan maison 5 pièces 4 chambres Surface maison 135 à 145 m2

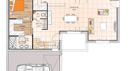
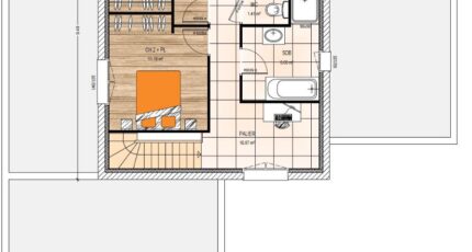
Votre constructeur Maisons Bernard JAMBERT vous propose un avant-projet réalisé dans le secteur d'Angers. Cette maison familiale à étage de 140 m² habitable, au style contemporain, se compose d'une belle entrée, d'une pièce de vie de 54 m² traversante avec une cuisine en renfoncement et donnant sur le jardin et terrasse. Vous serez séduit par la luminosité et les espaces. Le côté nuit est organisé autour de 3 chambres d'environ 11 m², une salle de bain et une petite mezzanine. Une zone de rangement est également prévue avec un cellier et un grand garage.

Construire ce modèle ?

    * Champs obligatoires

    Vos informations sont traitées par HEXAOM et transmises à un conseiller commercial qui vous contactera afin de répondre à votre demande. Les plans et images présentés sur notre site sont la propriété d’HEXAOM et ne peuvent pas être reproduits sans son accord. Pour retrouver notre politique de protection des données personnelles et exercer vos droits conformément à la « loi informatique et liberté » cliquez-ici.