R120121-4GI

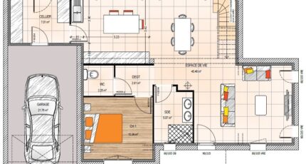
Plan maison 6 pièces 4 chambres Surface maison 121 à 122 m2

Une belle architecture traditionnelle pour cette maison de 120 m² habitable. Vous y découvrirez un vaste salon-séjour offrant de belles et grandes ouvertures, une cuisine ouverte avec ilot centrale pour plus de convivialité, un garage spacieux, 1 suite parentale au rez de chaussée avec une salle d'eau équipée d'un double vasque et d'une douche à l'italienne. A l'étage, on y trouve 3 autres chambres et une salle de bain. Ce Plan est personnalisable.

Construire ce modèle ?

    * Champs obligatoires

    Vos informations sont traitées par HEXAOM et transmises à un conseiller commercial qui vous contactera afin de répondre à votre demande. Les plans et images présentés sur notre site sont la propriété d’HEXAOM et ne peuvent pas être reproduits sans son accord. Pour retrouver notre politique de protection des données personnelles et exercer vos droits conformément à la « loi informatique et liberté » cliquez-ici.