R120113-4GI TUILES

Plan maison 5 pièces 4 chambres Surface maison 110 à 120 m2

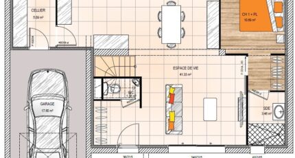
Les Maisons Bernard Jambert vous propose un projet de maison à étage d'une superficie de 113 m². Vous profiterez d'une pièce de vie de 41 m² lumineuse et spacieuse, une suite parentale, un cellier donnant sur garage. L'étage se compose de trois chambres qui raviront les enfants.

Construire ce modèle ?

    * Champs obligatoires

    Vos informations sont traitées par HEXAOM et transmises à un conseiller commercial qui vous contactera afin de répondre à votre demande. Les plans et images présentés sur notre site sont la propriété d’HEXAOM et ne peuvent pas être reproduits sans son accord. Pour retrouver notre politique de protection des données personnelles et exercer vos droits conformément à la « loi informatique et liberté » cliquez-ici.