R120107-3

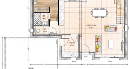
Plan maison 5 pièces 3 chambres Surface maison 105 à 110 m2

Construisons ensemble cette magnifique maison à étage de 107m². Elle vous offre l'espace d'une cuisine et une vaste pièce de vie confortable. L'espace nuit quant à lui se compose de 3 belles chambres dont une au rez de chaussée. Bénéficiez de la mezzanine pour y aménager un espace de travail ou de lecture. Possibilité de créer un carport attenant à la maison. Prestations de qualité.

Construire ce modèle ?

    * Champs obligatoires

    Vos informations sont traitées par HEXAOM et transmises à un conseiller commercial qui vous contactera afin de répondre à votre demande. Les plans et images présentés sur notre site sont la propriété d’HEXAOM et ne peuvent pas être reproduits sans son accord. Pour retrouver notre politique de protection des données personnelles et exercer vos droits conformément à la « loi informatique et liberté » cliquez-ici.