R119145-4GA

Plan maison 6 pièces 4 chambres Surface maison 140 à 145 m2

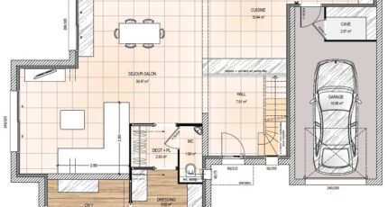
Optez pour ce modèle de maison contemporaine de 145m² habitable. Vous découvrirez au rez-de-chaussée un hall d'entrée de 7m² puis un séjour-salon spacieux, une cuisine ouverte de 15m² avec son arrière cuisine donnant accès au garage. Le rez de chaussée se compose également d'une suite parentale avec dressing et salle d'eau attenants à la chambre. A l'étage 3 autres chambres, une salle de bain et un WC séparé.

Construire ce modèle ?

    * Champs obligatoires

    Vos informations sont traitées par HEXAOM et transmises à un conseiller commercial qui vous contactera afin de répondre à votre demande. Les plans et images présentés sur notre site sont la propriété d’HEXAOM et ne peuvent pas être reproduits sans son accord. Pour retrouver notre politique de protection des données personnelles et exercer vos droits conformément à la « loi informatique et liberté » cliquez-ici.