R119114-4GA

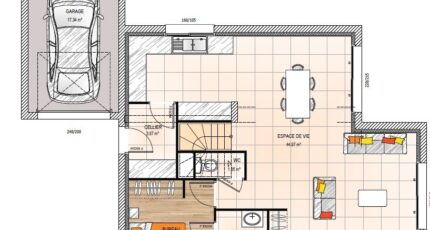
Plan maison 6 pièces 4 chambres Surface maison 114 m2

Une conception de maison destinée à un terrain ayant une petite façade. Cette maison s'organise autour de 114 m² habitable. Vous serez séduit par sa pièce de vie de 45 m² très lumineuse avec ses différentes baies coulissantes, sa cuisine ouverte pour une convivialité assurée et sa suite parentale au rdc. L'étage se compose de 2 chambres et d'une grande salle de jeux qui fera le bonheur des enfants.

Construire ce modèle ?

    * Champs obligatoires

    Vos informations sont traitées par HEXAOM et transmises à un conseiller commercial qui vous contactera afin de répondre à votre demande. Les plans et images présentés sur notre site sont la propriété d’HEXAOM et ne peuvent pas être reproduits sans son accord. Pour retrouver notre politique de protection des données personnelles et exercer vos droits conformément à la « loi informatique et liberté » cliquez-ici.