R119110-3BGA

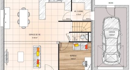
Plan maison 5 pièces 4 chambres Surface maison 110 m2

Votre maison Bernard Jambert vous offre les toutes dernières innovations pour votre projet de construction sur mesure. Architecture contemporaine pour cette maison de 110 m². Espace de vie traversant et lumineux de 42 m², cuisine ouverte, bureau, buanderie donnant sur garage. A l'étage chambre parentale avec salle d'eau privative et dressing attenant et 2 chambres et salle de bain.

Construire ce modèle ?

    * Champs obligatoires

    Vos informations sont traitées par HEXAOM et transmises à un conseiller commercial qui vous contactera afin de répondre à votre demande. Les plans et images présentés sur notre site sont la propriété d’HEXAOM et ne peuvent pas être reproduits sans son accord. Pour retrouver notre politique de protection des données personnelles et exercer vos droits conformément à la « loi informatique et liberté » cliquez-ici.