R119108-4GA
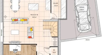
Plan maison 6 pièces 4 chambres Surface maison 108 m2
Un superbe avant projet réalisé en agglomération. Vous serez séduit par son organisation intérieure et ses volumes.
Un superbe avant projet réalisé en agglomération. Vous serez séduit par son organisation intérieure et ses volumes.