R119106-4GI TUILES

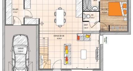
Plan maison 5 pièces 3 chambres Surface maison 105 à 107 m2

Maison très bien agencée comprenant au rez de chaussée : une grande pièce de vie avec cuisine ouverte, arrière cuisine, une chambre parentale, une salle d'eau attenante avec douche à l'italienne, un cellier donnant directement au garage. A l'étage on y trouve 3 belles chambres et une salle de bains.Prestation de qualité.

Construire ce modèle ?

    * Champs obligatoires

    Vos informations sont traitées par HEXAOM et transmises à un conseiller commercial qui vous contactera afin de répondre à votre demande. Les plans et images présentés sur notre site sont la propriété d’HEXAOM et ne peuvent pas être reproduits sans son accord. Pour retrouver notre politique de protection des données personnelles et exercer vos droits conformément à la « loi informatique et liberté » cliquez-ici.