R+1 4GI TRANSCENDANTE

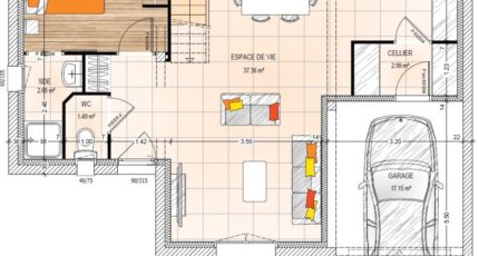
Plan maison 6 pièces 4 chambres Surface maison 99.13 m2

Ce projet Maison Bernard Jambert est fonctionnel et lumineux. Il dispose de nombreux avantages : au rez-de-chaussée, une pièce de vie de près spacieuse et baignée de lumière, un cellier accolé à la cuisine, une suite parentale, de nombreux rangements. Pour la partie nuit, à l'étage, un petit palier dessert une salle de bains avec baignoire et WC mais aussi 3 belles chambres. Cette maison répondra à tous vos besoins.

Construire ce modèle ?

    * Champs obligatoires

    Vos informations sont traitées par HEXAOM et transmises à un conseiller commercial qui vous contactera afin de répondre à votre demande. Les plans et images présentés sur notre site sont la propriété d’HEXAOM et ne peuvent pas être reproduits sans son accord. Pour retrouver notre politique de protection des données personnelles et exercer vos droits conformément à la « loi informatique et liberté » cliquez-ici.