R+1 4GI AUDACE

Plan maison 5 pièces 4 chambres Surface maison 99.13 m2

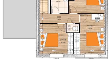
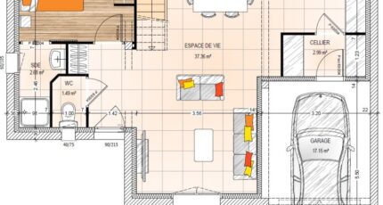
Cette maison Bernard Jambert à étage se compose d'une pièce de vie très lumineuse grâce à ses baies, 4 chambres dont 1 suite parentale au RDC, ainsi qu'un garage de 17 m². Ce modèle de maison propose un plan parfaitement optimisé. La pièce de vie de 37 m² intègre la cuisine et l'entrée. Vous disposez également dans cette maison d'un cellier de 3 m². A l'étage, 3 chambres d'environ 11 m² et qu'une salle de bains spacieuse. Cette maison vous inspire, venez la découvrir plus en détail auprès de nos équipes. Prenez rendez-vous !

Construire ce modèle ?

    * Champs obligatoires

    Vos informations sont traitées par HEXAOM et transmises à un conseiller commercial qui vous contactera afin de répondre à votre demande. Les plans et images présentés sur notre site sont la propriété d’HEXAOM et ne peuvent pas être reproduits sans son accord. Pour retrouver notre politique de protection des données personnelles et exercer vos droits conformément à la « loi informatique et liberté » cliquez-ici.