PPMP20100-3GI

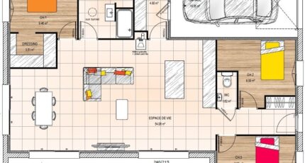
Plan maison 5 pièces 3 chambres Surface maison 100 m2

Un plain-pied très contemporain avec son toit mono pente. Vous apprécierez la pièce de vie de plus de 54 m² avec ses nombreuses ouvertures. Vous disposerez d'une suite parentale et de deux chambres supplémentaires. Le garage est accessible via la buanderie. En option, vous aurez la possibilité de choisir un habillage de façade totalement différent. A vous de choisir !

Construire ce modèle ?

    * Champs obligatoires

    Vos informations sont traitées par HEXAOM et transmises à un conseiller commercial qui vous contactera afin de répondre à votre demande. Les plans et images présentés sur notre site sont la propriété d’HEXAOM et ne peuvent pas être reproduits sans son accord. Pour retrouver notre politique de protection des données personnelles et exercer vos droits conformément à la « loi informatique et liberté » cliquez-ici.