PPLMP19102-2B

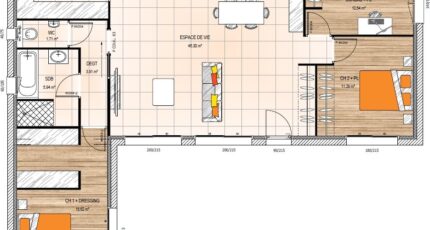
Plan maison 4 pièces 2 chambres Surface maison 102 à 103 m2

Très jolie architecture de plain-pied à vous proposer pour votre projet de construction personnalisé: pièce de vie agréable de 45m², cellier, bureau votre espace travail, 2 chambres dont une parentale avec dressing et salle de bain familiale avec douche à l'italienne, baignoire et vasque.

Construire ce modèle ?

    * Champs obligatoires

    Vos informations sont traitées par HEXAOM et transmises à un conseiller commercial qui vous contactera afin de répondre à votre demande. Les plans et images présentés sur notre site sont la propriété d’HEXAOM et ne peuvent pas être reproduits sans son accord. Pour retrouver notre politique de protection des données personnelles et exercer vos droits conformément à la « loi informatique et liberté » cliquez-ici.