PPL 4GA TRANQUILLE

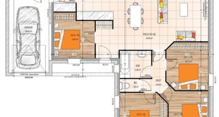
Plan maison 6 pièces 4 chambres Surface maison 96.29 m2

Un projet signé Maisons Bernard Jambert qui s'adaptera à votre mode de vie. Vous pourrez choisir les différentes prestations proposées par votre conseiller en habitat.

Construire ce modèle ?

    * Champs obligatoires

    Vos informations sont traitées par HEXAOM et transmises à un conseiller commercial qui vous contactera afin de répondre à votre demande. Les plans et images présentés sur notre site sont la propriété d’HEXAOM et ne peuvent pas être reproduits sans son accord. Pour retrouver notre politique de protection des données personnelles et exercer vos droits conformément à la « loi informatique et liberté » cliquez-ici.