PPL 4GA AMBIANCE

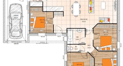
Plan maison 5 pièces 4 chambres Surface maison 96.29 m2

Cette maison Bernard Jambert de plain-pied en L se compose de 4 chambres , une pièce de vie très lumineuse grâce à ses baies, ainsi qu'un garage de 18 m². Ce modèle de maison propose un plan parfaitement optimisé. La pièce de vie de 43 m² intègre la cuisine et l'entrée. Vous disposez également dans cette maison d'un cellier de 3.7 m². Côté nuit, 4 chambres d'environ 10 m² ainsi qu'une salle de bains spacieuse. Cette maison vous inspire, venez la découvrir plus en détail auprès de nos équipes. Prenez rendez-vous !

Construire ce modèle ?

    * Champs obligatoires

    Vos informations sont traitées par HEXAOM et transmises à un conseiller commercial qui vous contactera afin de répondre à votre demande. Les plans et images présentés sur notre site sont la propriété d’HEXAOM et ne peuvent pas être reproduits sans son accord. Pour retrouver notre politique de protection des données personnelles et exercer vos droits conformément à la « loi informatique et liberté » cliquez-ici.