PP2068-2GI TUILES

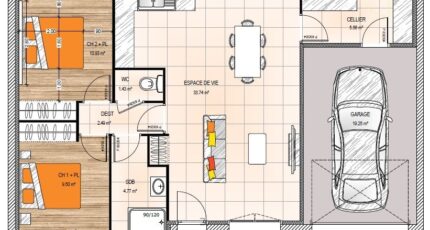
Plan maison 4 pièces 2 chambres Surface maison 68 à 69 m2

Une réalisation signée Maisons Bernard Jmbert. Maison de ville de 68m², idéale pour personne seule ou couple sénior. Vous serez séduit par la pièce de vie offrant un très beau volume et une belle luminosité, cuisine ouverte sur le salon-séjour avec un cellier attenant au garage, une salle de bain et deux chambres pour recevoir famille et amis.

Construire ce modèle ?

    * Champs obligatoires

    Vos informations sont traitées par HEXAOM et transmises à un conseiller commercial qui vous contactera afin de répondre à votre demande. Les plans et images présentés sur notre site sont la propriété d’HEXAOM et ne peuvent pas être reproduits sans son accord. Pour retrouver notre politique de protection des données personnelles et exercer vos droits conformément à la « loi informatique et liberté » cliquez-ici.