PP1989-3GI

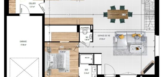
Plan maison 5 pièces 3 chambres Surface maison 85 à 90 m2

Maisons Bernard Jambert vous proposent cette jolie maison de plain-pied offrant volume et luminosité avec un bel espace à vivre, cuisine ouverte avec cellier attenant. La partie nuit se compose de 3 chambres spacieuses et une salle de bain toute équipée d'une douche à l'italienne. Prestations de qualité.

Construire ce modèle ?

    * Champs obligatoires

    Vos informations sont traitées par HEXAOM et transmises à un conseiller commercial qui vous contactera afin de répondre à votre demande. Les plans et images présentés sur notre site sont la propriété d’HEXAOM et ne peuvent pas être reproduits sans son accord. Pour retrouver notre politique de protection des données personnelles et exercer vos droits conformément à la « loi informatique et liberté » cliquez-ici.