PP1984-3GI TUILES

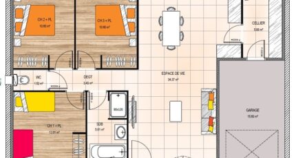
Plan maison 5 pièces 3 chambres Surface maison 80 à 85 m2

N'hésitez plus et devenez propriétaire de votre maison de plain-pied! Elle vous offrira une belle pièce à vivre, cuisine, 3 chambres équipées de placard, arrière cuisine et garage. Renseignez-vous!

Construire ce modèle ?

    * Champs obligatoires

    Vos informations sont traitées par HEXAOM et transmises à un conseiller commercial qui vous contactera afin de répondre à votre demande. Les plans et images présentés sur notre site sont la propriété d’HEXAOM et ne peuvent pas être reproduits sans son accord. Pour retrouver notre politique de protection des données personnelles et exercer vos droits conformément à la « loi informatique et liberté » cliquez-ici.