PP1978-2

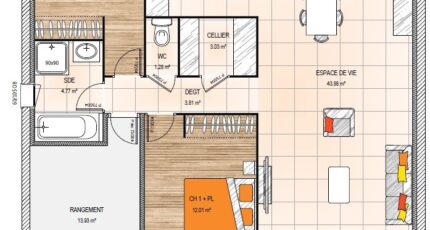
Plan maison 5 pièces 2 chambres Surface maison 75 à 80 m2

Offrez-vous cette maison de plain-pied de 78m² habitables comprenant un vaste espace à vivre avec cuisine ouverte, un cellier et une pièce de rangement de 14m². Vous t trouverez un espace nuit bien agencé avec 2 chambres équipées de placard intégré et une salle de bain avec douche et baignoire.

Construire ce modèle ?

    * Champs obligatoires

    Vos informations sont traitées par HEXAOM et transmises à un conseiller commercial qui vous contactera afin de répondre à votre demande. Les plans et images présentés sur notre site sont la propriété d’HEXAOM et ne peuvent pas être reproduits sans son accord. Pour retrouver notre politique de protection des données personnelles et exercer vos droits conformément à la « loi informatique et liberté » cliquez-ici.