PP19164-4BGI

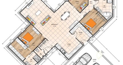
Plan maison 7 pièces 4 chambres Surface maison 160 à 165 m2

Magnifique plain-pied de plus de 160m² habitables, certainement le charme que vous recherchez. Il est composé d'une grande pièce de vie de 64m², cuisine ouverte et arrière cuisine donnant l'accès à votre double garage de 39m². Vous y trouverez aussi un bureau pour votre espace travail et 4 grandes chambres dont une suite parentale composée d'un dressing et d'une salle d'eau privative. Découvrez enfin une salle de bain équipée d'une baignoire d'angle, d'un double vasque, d'une douche spacieuse et d'un WC intégré.

Construire ce modèle ?

    * Champs obligatoires

    Vos informations sont traitées par HEXAOM et transmises à un conseiller commercial qui vous contactera afin de répondre à votre demande. Les plans et images présentés sur notre site sont la propriété d’HEXAOM et ne peuvent pas être reproduits sans son accord. Pour retrouver notre politique de protection des données personnelles et exercer vos droits conformément à la « loi informatique et liberté » cliquez-ici.