PP19110-3BGI

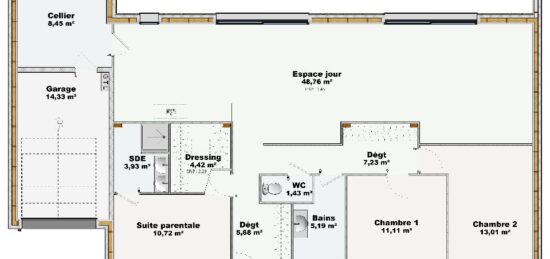
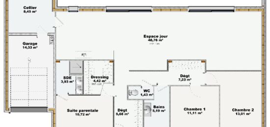
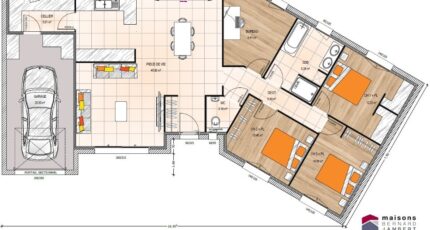
Plan maison 5 pièces 3 chambres Surface maison 108 à 112 m2

Devenez propriétaire de cette magnifique maison plain-pied composée d'un salon-séjour lumineux, un bureau, une cuisine ouverte et son cellier attenant au garage. Vous y découvrirez un espace nuit avec 3 chambres et une grande salle de bain toute équipée: baignoire, douche et double vasque. Projet personnalisé.

Construire ce modèle ?

    * Champs obligatoires

    Vos informations sont traitées par HEXAOM et transmises à un conseiller commercial qui vous contactera afin de répondre à votre demande. Les plans et images présentés sur notre site sont la propriété d’HEXAOM et ne peuvent pas être reproduits sans son accord. Pour retrouver notre politique de protection des données personnelles et exercer vos droits conformément à la « loi informatique et liberté » cliquez-ici.