PP 3GI ELEGANCE

Plan maison 5 pièces 3 chambres Surface maison 85.2 m2

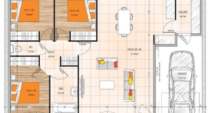
Cet avant projet des Maisons Bernard Jambert se compose de 3 chambres, une pièce de vie traversante et lumineuse, ainsi qu'un garage intégré de 17 m². Ce plan est parfaitement optimisé. La pièce de vie de 41 m² intègre la cuisine et l'entrée. Vous disposez également dans cette maison d'un cellier de 4.5 m² donnant l'accès au garage. Côté nuit, 3 chambres sont situées de part et d'autre de la salle de bains. Cette maison vous inspire, venez la découvrir plus en détail auprès de nos équipes. Prenez rendez-vous !

Construire ce modèle ?

    * Champs obligatoires

    Vos informations sont traitées par HEXAOM et transmises à un conseiller commercial qui vous contactera afin de répondre à votre demande. Les plans et images présentés sur notre site sont la propriété d’HEXAOM et ne peuvent pas être reproduits sans son accord. Pour retrouver notre politique de protection des données personnelles et exercer vos droits conformément à la « loi informatique et liberté » cliquez-ici.