PP 3GA ALLURE

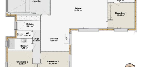
Plan maison 4 pièces 3 chambres Surface maison 79.34 m2

Cette maison Bernard Jambert de plain-pied se compose de 3 chambres, une pièce de vie traversante et lumineuse, ainsi qu'un garage accolé de 17 m². Ce modèle de maison compacte propose un plan parfaitement optimisé. La pièce de vie de 37 m² intègre la cuisine et l'entrée. Vous disposez également dans cette maison d'un cellier de 3 m². Côté nuit, trois chambres d'environ 10 m², la salle de bains et les WC . Cette maison vous inspire, venez la découvrir plus en détail auprès de nos équipes. Prenez rendez-vous !

Construire ce modèle ?

    * Champs obligatoires

    Vos informations sont traitées par HEXAOM et transmises à un conseiller commercial qui vous contactera afin de répondre à votre demande. Les plans et images présentés sur notre site sont la propriété d’HEXAOM et ne peuvent pas être reproduits sans son accord. Pour retrouver notre politique de protection des données personnelles et exercer vos droits conformément à la « loi informatique et liberté » cliquez-ici.