Lumi 113 GI Sud

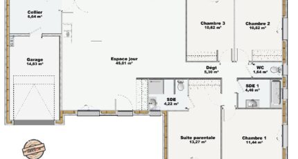
Plan maison 5 pièces 4 chambres Surface maison 113 m2

Lumière et espace : Lumi 113 une maison à ossature bois pensée pour le bien-être !
Ce plan de maison dévoile un agencement de plain-pied où la lumière naturelle circule librement, créant une atmosphère chaleureuse et accueillante. L'ossature bois, gage de confort et d'isolation, enveloppe les espaces de vie d'une douceur naturelle. La pièce de vie principale, d'une générosité remarquable avec ses 45,01 m², s'ouvre sur l'extérieur, invitant à la convivialité et au partage. Les trois chambres, conçues comme des havres de paix, offrent à chacun son espace d'intimité, tandis que la suite parentale, avec sa salle d'eau privative, promet un confort absolu.
Fonctionnalité et confort : un agencement pensé pour le quotidien
Chaque espace de cette maison a été pensé pour faciliter le quotidien. Le cellier, le garage intégré et les deux salles d'eau offrent des solutions pratiques pour le rangement et l'organisation. Le dégagement central assure une circulation fluide entre les pièces, tandis que les toilettes séparées ajoutent une touche de confort supplémentaire. L'ossature bois, au-delà de ses qualités esthétiques, garantit une isolation thermique et acoustique optimale, pour un bien-être en toute saison. Cette maison est une invitation à vivre dans un espace harmonieux, où la lumière, le confort et la fonctionnalité se conjuguent pour créer un lieu de vie idéal.

Construire ce modèle ?

    * Champs obligatoires

    Vos informations sont traitées par HEXAOM et transmises à un conseiller commercial qui vous contactera afin de répondre à votre demande. Les plans et images présentés sur notre site sont la propriété d’HEXAOM et ne peuvent pas être reproduits sans son accord. Pour retrouver notre politique de protection des données personnelles et exercer vos droits conformément à la « loi informatique et liberté » cliquez-ici.