CA 3GI+COM TEMPERE

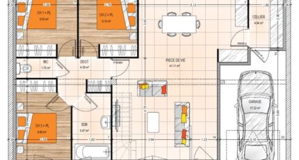
Plan maison 5 pièces 5 chambres Surface maison 85.14 à 114.53 m2

Un avant projet proposé par les Maisons Bernard Jambert qui doit son succès de par son organisation optimale, ses grandes ouvertures et ses nombreux rangements. Vous pourrez définir les prestations que vous souhaitez avec votre conseiller en habitat Maisons Bernard Jambert.

Construire ce modèle ?

    * Champs obligatoires

    Vos informations sont traitées par HEXAOM et transmises à un conseiller commercial qui vous contactera afin de répondre à votre demande. Les plans et images présentés sur notre site sont la propriété d’HEXAOM et ne peuvent pas être reproduits sans son accord. Pour retrouver notre politique de protection des données personnelles et exercer vos droits conformément à la « loi informatique et liberté » cliquez-ici.