Origin 83 GI Sud

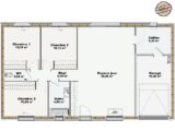
Plan maison 5 pièces 3 chambres Surface maison 83 m2

Origin 83 : Un plain-pied moderne et fonctionnel en ossature bois pour une vie familiale harmonieuse
Ce plan de maison de 83 m² offre une conception en bois contemporaine et optimisée, idéale pour une famille en quête de confort et de praticité. L'espace de vie central, baigné de lumière naturelle, favorise la convivialité et le partage, tandis que les trois chambres offrent des espaces intimes et confortables pour chacun. Les espaces fonctionnels, pensés avec soin, facilitent le quotidien et assurent une organisation optimale.
Un espace de vie ouvert et lumineux pour des moments de partage inoubliables
L'espace jour, d'une superficie de 36,06 m², constitue le coeur de la maison, offrant un lieu de vie spacieux et lumineux. Les larges ouvertures laissent entrer la lumière naturelle, créant une atmosphère chaleureuse et accueillante. Cet espace est idéal pour se détendre, recevoir des amis ou partager des repas en famille. Les chambres, quant à elles, sont conçues comme des havres de paix, offrant à chacun son espace personnel pour se ressourcer.
Des espaces fonctionnels pensés pour faciliter le quotidien
Le plan Origin 83 met l'accent sur la fonctionnalité avec des espaces bien définis et optimisés. Le cellier offre un espace de rangement pratique, tandis que le garage intégré assure la sécurité de votre véhicule. La salle de bains, avec sa baignoire ou sa douche, est conçue pour le confort de toute la famille. Le dégagement central facilite la circulation entre les pièces, tandis que les toilettes séparées ajoutent une touche de confort supplémentaire. Cette maison est une invitation à vivre dans un espace moderne et fonctionnel, où chaque membre de la famille se sentira à son aise.

Construire ce modèle ?

    * Champs obligatoires

    Vos informations sont traitées par HEXAOM et transmises à un conseiller commercial qui vous contactera afin de répondre à votre demande. Les plans et images présentés sur notre site sont la propriété d’HEXAOM et ne peuvent pas être reproduits sans son accord. Pour retrouver notre politique de protection des données personnelles et exercer vos droits conformément à la « loi informatique et liberté » cliquez-ici.