Naturelle 97 GI Nord

Plan maison 5 pièces 4 chambres Surface maison 97 m2

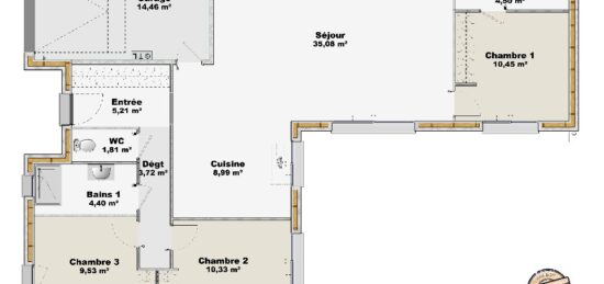
La maison Naturelle 97, conçue avec une ossature bois, est une habitation à étage intégrant un garage, offrant une surface habitable totale de 96,96 m².
Au rez-de-chaussée (60,56 m²), elle propose un vaste espace jour de 38,16 m², idéal pour la vie de famille. On y trouve également une chambre de 11,00 m² avec sa propre salle d'eau de 2,16 m², un WC de 2,21 m², un cellier de 4,05 m² et un garage spacieux de 13,42 m², directement accessible depuis l'intérieur.
L'étage (36,40 m²) est dédié aux espaces de nuit, comprenant trois chambres supplémentaires (10,84 m², 10,67 m² et 10,03 m²) et une salle de bains de 5,00 m², complétées par un dégagement de 3,20 m².
La construction en ossature bois, comme pour les autres modèles, présente des avantages considérables : elle garantit une isolation thermique et acoustique performante, permettant des économies d'énergie substantielles et un confort de vie supérieur. L'utilisation du bois, un matériau renouvelable, s'inscrit dans une démarche écologique, réduisant l'empreinte environnementale de l'habitat. De plus, la rapidité de construction et la création d'un environnement intérieur sain sont des atouts majeurs de ce type de maison.

Construire ce modèle ?

    * Champs obligatoires

    Vos informations sont traitées par HEXAOM et transmises à un conseiller commercial qui vous contactera afin de répondre à votre demande. Les plans et images présentés sur notre site sont la propriété d’HEXAOM et ne peuvent pas être reproduits sans son accord. Pour retrouver notre politique de protection des données personnelles et exercer vos droits conformément à la « loi informatique et liberté » cliquez-ici.