Epure 94 GI Nord

Plan maison 4 pièces 3 chambres Surface maison 94 m2

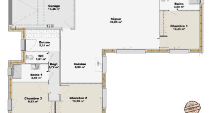
Cette maison à ossature bois, nommée Épure 94, se distingue par son plan en L optimisant l'espace et la lumière naturelle. D'une surface habitable de 94,62 m², elle comprend un séjour spacieux de 35,08 m², une cuisine de 8,99 m², trois chambres (10,45 m², 10,33 m², 9,45 m²), deux salles de bains (4,50 m² et 4,32 m²), un WC (1,76 m²), un dégagement (3,93 m²) et une entrée (5,21 m²), ainsi qu'un garage de 14,46 m².
L'intérêt de la construction bois réside dans ses multiples avantages : elle offre une excellente isolation thermique et phonique, contribuant ainsi à des économies d'énergie substantielles et à un confort intérieur accru. De plus, le bois est un matériau renouvelable et écologique, qui réduit l'empreinte carbone de la construction. Sa légèreté permet des fondations moins importantes et sa rapidité de mise en oeuvre accélère les délais de chantier. Enfin, la construction bois favorise un environnement intérieur sain grâce aux propriétés respirantes du bois.

Construire ce modèle ?

    * Champs obligatoires

    Vos informations sont traitées par HEXAOM et transmises à un conseiller commercial qui vous contactera afin de répondre à votre demande. Les plans et images présentés sur notre site sont la propriété d’HEXAOM et ne peuvent pas être reproduits sans son accord. Pour retrouver notre politique de protection des données personnelles et exercer vos droits conformément à la « loi informatique et liberté » cliquez-ici.