Maison neuve à
Villemoisan (49370) Référence : MJ2446519_3

Prix du projet : Maison avec Terrain

prix 229 700 €

  • 6 pièces
  • 4 chambres
  • Surface maison 99 m2

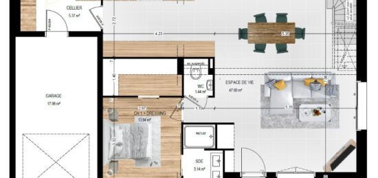
Maison de 6 pièces (99 m²) à vendre à Villemoisan
IDÉALEMENT SITUÉE - MAISON 6 PIÈCES NEUVE
À vendre : à 25 km d'Angers, laissez vous charmer par cette maison de 6 pièces de plain-pied de 99 m² et de 358 m² de terrain idéalement située dans Villemoisan (49370). Elle dispose de quatre chambres, d'une cuisine et d'une salle de bains.
La maison est neuve.
Cette maison se situe dans un quartier prisé. L'École Primaire Publique les Tilleuls se trouve à moins de 10 minutes à pied. Niveau transports, il y a deux gares (Champtocé-sur-Loire et Ingrandes-Le Fresne-sur-Loire) à moins de 10 minutes en voiture. On trouve un bassin de natation et une bibliothèque dans les environs.
Elle est proposée à l'achat pour 229 700 €.
Prenez contact avec Mathieu JANNEAU (06-01-35-24-98) pour toute question sur la propriété ou sur les modalités de vente.

Mentions légales

Terrain proposé par un partenaire foncier selon disponibilités et autorisation de publicité au prix de 58 400 €. Hors droit d'enregistrement et frais de notaire. Terrain + Maison proposés au prix de 229 700 € (Hors branchements et raccordements, papiers peints, peintures, revêtement de sol dans les chambres. Tarif modifiable sans préavis). Etiquette énergie : A. Différents modèles disponibles pour ce terrain. Assurances et garanties du constructeur (RC professionnelle, décennale, dommage ouvrage, garantie de remboursement de l'acompte, livraison à prix et délai convenu) : https://www.maisons-bernard-jambert.com/informations-legales/.

Contactez l'agence de Angers

02 41 77 17 17

    * Champs obligatoires

    Vos informations sont traitées par HEXAOM et transmises à un conseiller commercial qui vous contactera afin de répondre à votre demande. Les plans et images présentés sur notre site sont la propriété d’HEXAOM et ne peuvent pas être reproduits sans son accord. Pour retrouver notre politique de protection des données personnelles et exercer vos droits conformément à la « loi informatique et liberté » cliquez-ici.