Maison neuve à
Vernantes (49390) Référence : CP2421439_3

Prix du projet : Maison avec Terrain

prix 278 600 €

  • 6 pièces
  • 4 chambres
  • Surface maison 125 m2

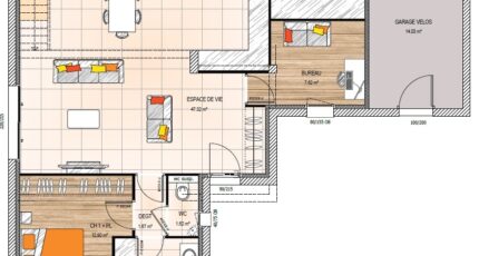
Maison de 6 pièces (125 m²) en vente à Vernantes
MAISON 6 PIÈCES NEUVE - PROCHE DE SAUMUR
À vendre : située à 17 km de Saumur, nous vous présentons à Vernantes (49390), cette maison de 6 pièces de 125 m². Son intérieur est composé de quatre chambres, d'une cuisine et de deux salles de bains.
Le terrain de la propriété s'étend sur 331 m².
C'est une maison de 2 niveaux. Elle est neuve.
L'École Primaire Privée Notre-Dame et l'École Primaire Publique Eugène Livet sont implantées à moins de 10 minutes à pied. Il y a un accès à l'autoroute A85 à 11 km. Il y a trois boulangeries et une épicerie à quelques minutes à peine.
Elle est à vendre pour la somme de 278 600 €.
Contactez notre agence (Carole PORCHER : 06-88-98-52-77) pour plus de renseignements sur la maison. Maisons Bernard Jambert Angers est là pour vous accompagner à toutes les étapes de l'achat.

Mentions légales

Terrain proposé par un partenaire foncier selon disponibilités et autorisation de publicité au prix de 18 205 €. Hors droit d'enregistrement et frais de notaire. Terrain + Maison proposés au prix de 278 600 € (Hors branchements et raccordements, papiers peints, peintures, revêtement de sol dans les chambres. Tarif modifiable sans préavis). Etiquette énergie : A. Différents modèles disponibles pour ce terrain. Assurances et garanties du constructeur (RC professionnelle, décennale, dommage ouvrage, garantie de remboursement de l'acompte, livraison à prix et délai convenu) : https://www.maisons-bernard-jambert.com/informations-legales/.

Contactez l'agence de Angers

02 41 77 17 17

    * Champs obligatoires

    Vos informations sont traitées par HEXAOM et transmises à un conseiller commercial qui vous contactera afin de répondre à votre demande. Les plans et images présentés sur notre site sont la propriété d’HEXAOM et ne peuvent pas être reproduits sans son accord. Pour retrouver notre politique de protection des données personnelles et exercer vos droits conformément à la « loi informatique et liberté » cliquez-ici.