Maison neuve à
Vern-d'Anjou (49220) Référence : RS2380520_3

Prix du projet : Maison avec Terrain

prix 261 500 €

  • 5 pièces
  • 3 chambres
  • Surface maison 85 m2

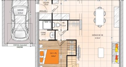
VENTE : maison de 5 pièces (85 m²) à Vern-d'Anjou
MAISON 5 PIÈCES NEUVE - PROCHE D'ANGERS
À quelques kilomètres d'Angers, en vente à Vern-d'Anjou (49220), votre agence Maisons Bernard Jambert Angers est heureuse de vous proposer cette maison de 5 pièces de 85 m² et de 430 m² de terrain. Elle propose trois chambres, une cuisine et deux salles de bains.
Il s'agit d'une maison de 2 niveaux. Elle est neuve.
Il y a l'École Primaire Privée Sainte-Marie et l'École Primaire Publique Hervé Bazin à moins de 10 minutes à pied. On trouve un accès à l'autoroute A11 à 19 km. On trouve un bassin de natation, un tennis, deux boulangeries, un supermarché, un commerce et un bureau de poste à proximité.
Son prix de vente est de 261 500 €.
Prenez contact avec notre agence (Roman SALAS : 02-41-77-17-17) pour toute question sur cette maison, sur les modalités de vente ou sur les démarches à suivre. Maisons Bernard Jambert Angers est là pour vous accompagner à toutes les étapes de l'achat.

Mentions légales

Terrain proposé par un partenaire foncier selon disponibilités et autorisation de publicité au prix de 69 640 €. Hors droit d'enregistrement et frais de notaire. Terrain + Maison proposés au prix de 191 860 € (Hors branchements et raccordements, papiers peints, peintures, revêtement de sol dans les chambres. Tarif modifiable sans préavis). Etiquette énergie : A. Différents modèles disponibles pour ce terrain. Assurances et garanties du constructeur (RC professionnelle, décennale, dommage ouvrage, garantie de remboursement de l'acompte, livraison à prix et délai convenu) : https://www.maisons-bernard-jambert.com/informations-legales/.

Contactez l'agence de Angers

02 41 77 17 17

    * Champs obligatoires

    Vos informations sont traitées par HEXAOM et transmises à un conseiller commercial qui vous contactera afin de répondre à votre demande. Les plans et images présentés sur notre site sont la propriété d’HEXAOM et ne peuvent pas être reproduits sans son accord. Pour retrouver notre politique de protection des données personnelles et exercer vos droits conformément à la « loi informatique et liberté » cliquez-ici.