Maison neuve à
Vern-d'Anjou (49220) Référence : RS2380520_2

Prix du projet : Maison avec Terrain

prix 264 300 €

  • 5 pièces
  • 3 chambres
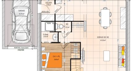
  • Surface maison 85 m2

VENTE : maison T5 (85 m²) à Vern-d'Anjou
MAISON 5 PIÈCES NEUVE - PROCHE D'ANGERS
En vente à deux pas d'Angers, nous sommes heureux de vous proposer à Vern-d'Anjou (49220), cette maison de 5 pièces de 85 m² et de 430 m² de terrain. Son intérieur compte trois chambres, une cuisine et deux salles de bains.
Cette maison possède 2 niveaux. Elle est neuve.
Il y a l'École Primaire Privée Sainte-Marie et l'École Primaire Publique Hervé Bazin à moins de 10 minutes à pied. L'autoroute A11 est accessible à 19 km. On trouve un bassin de natation, un tennis, deux boulangeries, un supermarché, un commerce et un bureau de poste à quelques minutes à peine.
Son prix de vente est de 264 300 €.
Prenez contact avec Roman SALAS (02-41-77-17-17) pour toute question sur la maison, sur les modalités de vente ou sur les démarches à suivre. Maisons Bernard Jambert Angers est là pour vous accompagner à toutes les étapes de votre projet.

Mentions légales

Terrain proposé par un partenaire foncier selon disponibilités et autorisation de publicité au prix de 69 640 €. Hors droit d'enregistrement et frais de notaire. Terrain + Maison proposés au prix de 264 300 € (Hors branchements et raccordements, papiers peints, peintures, revêtement de sol dans les chambres. Tarif modifiable sans préavis). Etiquette énergie : A. Différents modèles disponibles pour ce terrain. Assurances et garanties du constructeur (RC professionnelle, décennale, dommage ouvrage, garantie de remboursement de l'acompte, livraison à prix et délai convenu) : https://www.maisons-bernard-jambert.com/informations-legales/.

Contactez l'agence de Angers

02 41 77 17 17

    * Champs obligatoires

    Vos informations sont traitées par HEXAOM et transmises à un conseiller commercial qui vous contactera afin de répondre à votre demande. Les plans et images présentés sur notre site sont la propriété d’HEXAOM et ne peuvent pas être reproduits sans son accord. Pour retrouver notre politique de protection des données personnelles et exercer vos droits conformément à la « loi informatique et liberté » cliquez-ici.