Maison neuve à
Vauchrétien (49320) Référence : RS2326153_3

Prix du projet : Maison avec Terrain

prix 338 500 €

  • 5 pièces
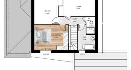
  • 4 chambres
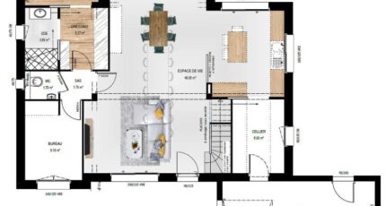
  • Surface maison 135 m2

Vauchrétien : maison F5 (135 m²) à vendre
PROCHE D'ANGERS - MAISON 5 PIÈCES NEUVE
En vente : à deux pas d'Angers, notre agence Maisons Bernard Jambert Angers est ravie de vous proposer cette maison de 5 pièces de 135 m² et de 421 m² de terrain à Vauchrétien (49320). Son intérieur se divise en quatre chambres, une cuisine et deux salles de bains.
Cette maison comporte 2 niveaux. Elle est neuve.
Il y a l'École Primaire Publique Emile Joulain à moins de 10 minutes à pied et une structure d'accueil pour les enfants en bas âge. Les autoroutes A87 et A87N sont accessibles à moins de 8 km. On trouve une bibliothèque dans les environs.
Son prix de vente est de 338 500 €.
Contactez Roman SALAS (tél : 02-41-77-17-17) pour obtenir de plus amples renseignements sur cette propriété ou sur les démarches à suivre.

Mentions légales

Terrain proposé par un partenaire foncier selon disponibilités et autorisation de publicité au prix de 59 000 €. Hors droit d'enregistrement et frais de notaire. Maison proposée, avec un contrat de construction de maison individuelle, dans le cadre de la loi du 19/12/1990, au prix de 279 500 € (Hors branchements et raccordements, papiers peints, peintures, revêtement de sol dans les chambres, qui sont chiffrés dans les travaux qui restent à charge du client. Tarif modifiable sans préavis). Étiquette énergie : A. Différents modèles disponibles pour ce terrain. Assurances et garanties du constructeur comprises (RC professionnelle, décennale, dommage ouvrage).

Contactez l'agence de Angers

02 41 77 17 17

    * Champs obligatoires

    Vos informations sont traitées par HEXAOM et transmises à un conseiller commercial qui vous contactera afin de répondre à votre demande. Les plans et images présentés sur notre site sont la propriété d’HEXAOM et ne peuvent pas être reproduits sans son accord. Pour retrouver notre politique de protection des données personnelles et exercer vos droits conformément à la « loi informatique et liberté » cliquez-ici.